#9041

Seafront Luxury Detached Villa in Ayia Triada, Famagusta

Ayia Triada, Famagusta

€1,750,000 + VAT
  • 5Bedrooms
  • 4Bathrooms
  • 5Toilets
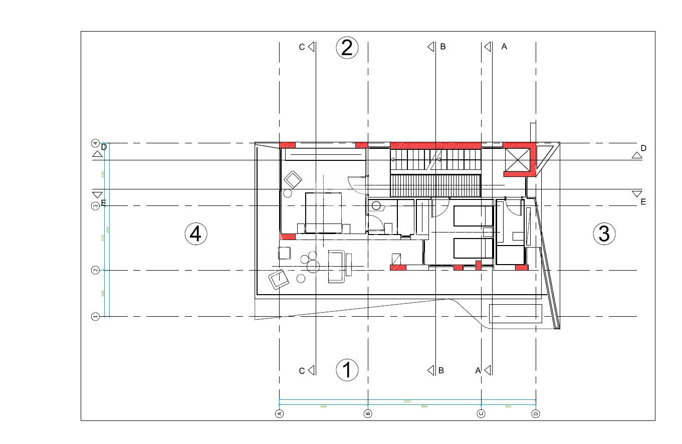
  • 243 m2Covered Area
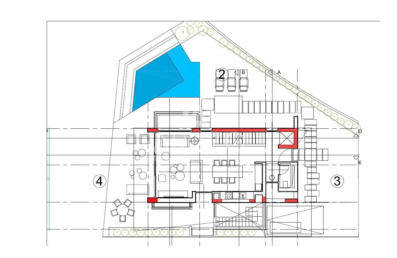
  • 382 m2Plot Area
  • 115 m2Uncovered Veranda
  • Unfurnished
This first line on the Mediterranean detached villa, currently under construction, offers a generous internal space of 243 m². The home features five spacious bedrooms and four modern bathrooms, providing ample room for comfortable family living or entertaining guests. The villa is unfurnished, giving you the freedom to design your interior just the way you want.

A private elevator provides easy access to every floor, while large windows offer panoramic views of the surrounding landscape and stunning sea views from many rooms. Step outside to your private swimming pool and the seafront, where you can enjoy sunrises or sunsets in complete tranquility.

Located in the desirable area of Ayia Triada, this villa gives you the chance to experience a relaxed coastal lifestyle. The area is known for its beautiful beaches, peaceful surroundings, and easy access to a range of amenities such as shops, cafes, and services. The nearby highway ensures quick and convenient travel to other destinations.

With its prime location, modern features, and breathtaking views, this property is a unique opportunity for those seeking a luxury home by the sea.

Facilities

  • Aircondition, Provision
  • Elevator
  • Maid's room
  • Parking, Covered
  • Pool, Private
  • Solar water heater

Features

  • Balcony
  • Bright
  • Combined kitchen and dining area
  • Double glazing
  • Easy access to highway
  • Easy access to main roads
  • En suite shower
  • Fitted wardrobes
  • Garden
  • Guest WC
  • Laundry room
  • Luxury specifications
  • Modern design
  • Near amenities
  • Near bus route
  • Open plan
  • Panoramic view
  • Quiet area
  • Rental potential
  • Roof garden
  • Sea front
  • Sea view
  • Spacious rooms
  • Tile flooring
  • Veranda
  • Walking distance to beach

Distances

  • Amenities:600 m
  • Airport:50 km
  • Sea:50 m
  • Public transport:1 km
  • Schools:1 km
  • Resort:1 km
Any areas, energy class, measurements or descriptions are approximate and for guidance only. All information provided by Arazo Estates Ltd should be independently verified and confirmed by interested party. No guarantee, warranty or representation of any kind is made regarding accuracy of any data mentioned herein. All photographs are provided for guidance only.

Email us

Thank you for your message! We will get back to you as soon as possible.
Protected by reCAPTCHA. Google Privacy Policy and Terms of Service apply.

Send message
Share